Some of our Projects by Industry

Commercial

Residential

3d walk through exterior

Santa Monica, CA 

3D tour for homes in Calabasas

Paxton Calabasas, CA, 91302

3D tour for single family house

Church

residential photos HD 4K

Construction Site

west lake village 3D virtual tour

Westlake Village, CA, 91362

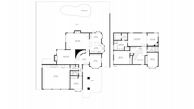
Schematic floor plan for designers

Venice Beach, CA

complete 3D tour for Horse barn

Thousand Oaks, CA 91361

Gorgeous View in 3D tour

Thousand Oaks, CA 91361

Beverly Hills 3D tour company

Los Angeles, CA

To view more 3D Showcase videos, please click below on the projects done by Matterport :